Stock level Adjustment Import
Please keep the following in mind:
| 1 | Once you begin with this procedure no source documents can be processed. Only a Stock Take freezes the inventory module. |
| 2 | Do a backup. |
.png)
Print an Inventory Valuation Report before starting a Stock Take
IM – Report – Inventory Valuation
.png)
If you don’t use any of the add on modules or Sales Orders then run a consolidated Valuation report per warehouse. However if you have the Bill of Materials add on module you will need to run a minimum of two reports.
Example: A company is using Huge ERP and the Bill of Materials add on module.
.png)
This will give you a complete overview of all stock on hand and value
.png)
This report will give you all the stock that will appear in your BOM WIP account. Remember you can not affect this stock.
.png)
This is the stock that is to be counted.
.png)
GL – Reports - Trial Balance
Print a Trial Balance
.png)
Inventory – Reports – Inventory Count
Print an Inventory Count Report
.png)
Print and export to excel
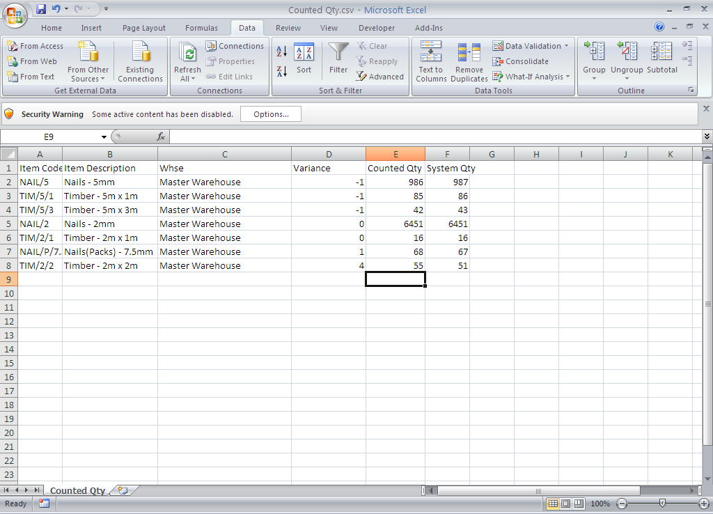
Proceed with a manual stock take – See attachment ‘Counted Qty.csv’
.png)
Sort by Column Variance
.png)
Now copy and paste the negative values onto a new excel worksheet and do the same for the positive. See attachments ‘Positive Stock’ and ‘Negative Stock’.
Remember that if the System Qty and Counted Qty are identical there is no reason to do a Stock Journal for these items.
.png)
On the both import files create a new column called ‘Increase / Decrease’. This will allow the system to know whether the amount being import should increase or decrease the quantity on hand. To ‘Increase’ use a 1 and to ‘Decrease’ use a 0.
Things to remember:
| 1 | You cannot import a negative figure, so re-evaluate the equation that you were using. |
| 2 | The Variance column cannot have a 1000 comma separator. |
.png)
IM - Activity – Stock Level Adjustment
Click on the Upload button
.png)
Browse button
.png)
Browse for the first import file and click on ‘Open’
.png)
Upload’
.png)
.png)
.png)
No Comments